Товч танилцуулга
Rescara International Enerji Delta хаалганы систем
Хаалганы давуу талууд
-
Эдэлгээний хугацаа урт, бат бөх металл хүрээ хийцтэй.зузаантай
-
Байгалийн гэрэл нэвтрүүлэх 3 давхар шилэн багц нь дулаан тусгаарлалт сайтай.
-
Хүрээ нь нар салхинд өнгө алддаггүй хуурай будгийн технологиор будагдсан
-
Хавтас болон хүрээндээ 34 мм дулааны гүүрэн тусгаарлагчтай
-
Өндөр чанартай нугас, цоож, бариул, татуурга бүхий иж бүрэн тоногтой
-
Өнгө үзэмж сайтай, өнгөний өргөн сонголттой.
-
Халуун хүйтэнд тэсвэртэй 3 давхар резин жийргэвчтэй.
-
Онгойлт, хаагдалт, эвхэгдэлт, эргэлтийн олон төрлийн хувилбартай.
-
Бүрэн автомат, дижитал удирдлага, төрөл бүрийн мэдрэгчээр тоноглох боломжтой.
Бариул болон тайвшруулагчны сонголтууд
ТЕХНИК ҮЗҮҮЛЭЛТ
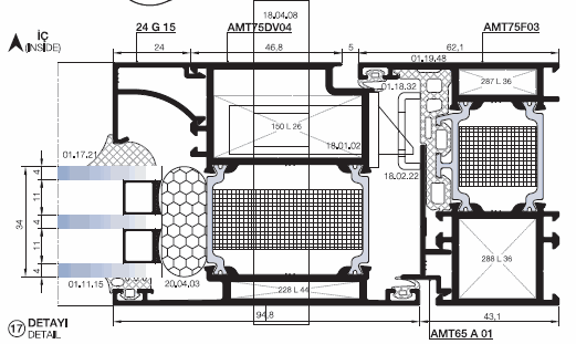
Хүрээний зузаан: 75мм
Хавтасны зузаан: 65/85мм
Бэлдэцийн ханын зузаан: 1,4/2мм
Дүүргэлтийн зузаан: 48/58мм
Дулааны гүүрэн тусгаарлагч: 34мм пенополистиро
ХААЛГАНЫ ТӨРӨЛҮҮД
Enerji Delta RWT-75 хаалганы систем нь зохицсон дизайн, зохистой үйл ажиллагааны шинжийг агуулсан. Энэхүү систем нь модулийн бүтцээрээ загварын өргөн сонголтыг бий болгодог. Гадна байдал болон хэрэглээний онцлог шинж нь шинэ хэрэглэгчийн шаардлага буюу өөр өөр боломжид хялбархан зохицдог. Иймээс гайхамшигтай үзүүлэлт буюу үйлдлийн ажиллагаагаараа ялгарч чаддаг.
Дан хавтастай хаалганууд