Товч танилциулага
Heroal
компани нь хөнгөнцагаан систем үйлдвэрлэлтээрээ олон улсад тэргүүлэгч
компаниудын нэг бөгөөд цонх, хаалга, фасад, хамгаалалтын жалюз зэрэг системийг
хөгжүүлэн, үйлдвэрлэж байна.
Heroal-ын үйл ажиллагааны үндсэн зарчим бол өндөр
түвшинд бэлтгэгдсэн мэргэжилтнүүдээс бүрдсэн хамт олонд тулгуурлаж хэвтээ
интеграцлал болон технологийн аюулгүй ажиллагааг бүрэн хангасан, эрчим хүчний
хэмнэлттэй ашигладаг өөрийн үйлдвэрлэлийг Герман улсад явуулж зураг төсөлчид,
архитекторууд, барилгачдыг чанарын стандартыг дээд зэргээр хангасан, эдийн
засгийн хувьд үр өгөөжтэй бүтээгдэхүүнээр хангасанаар барилгын үнэ цэнийг
нэмэгдүүлэхэд оршино.
Heroal нь мөн 40,000м2 талбай дээр үйл ажиллагаагаа
зохион байгуулж, өөрийн автопарк бүхий бараа бүтээгдэхүүн хуваарилах ложистик төвийг
шинээр ашиглалтанд оруулан ажиллаж байна.
Heroal нь хэрэглэгчдийн эрх ашгийг хамгаалах үүднээс өөрийн жалюзан хаалт, хаалга, цонх, фасад, тусгайлсан профиль хийцлэл зэрэг бараа бүтээгдэхүүнүүд болон агуулах сервис үйлчилгээндээ Герман улсын Rosenheim ift-ээс чанар стандартын баталгаажилтыг авдаг бөгөөд Heroal нь цэвэр өөрийн үйлдвэрлэлийн бүтээгдэхүүнээр хэрэглэгчийг хангаж ажилладаг.
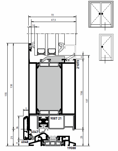
Heroal D72 хаалганы систем
Heroal хаалганы систем нь дизайн, бат бэх чанар, функцийн шинэ хэмжээстэйгээр өргөжин тэлж байна. Энэхүү системийн үүдний хаалга нь статистикийн үндэслэлээр их биед хамгийн удаан оршин тогтнох эд анги юм. Иймээс л үүдний хаалганы уян хатан чанар, хэрэглэхэд тохиромжтой байдал, гадаад үзэмж зэрэг нь түүний ач холбогдлыг тодруулж байна. Ер нь heroal-ийн хаалганы систем нь бат бэх, үйлдлийн систем сайтайгаас гадна дизайны өргөн сонголттой. Түүний олон хошуутай түгжээ, угсрахад зориулсан патент бүхий төхөөрөмж, heroal-ийн хэв маягийг шингээсэн стандарт зэрэг нь гайхамшигтай. Модулийн тусгаарлагч бүс болон гурван шатлалт битүүмжлэх технологиор дээд зэргийн дулаан тусгаарлагч онцлог шинжүүдийг агуулдаг.
Heroal D 72 хаалга
Дээд зэргийн чанартай материалаар хамгийн жижиг хэсгийг нь хүртэл нарийн тохируулж хийсэн, загварын өргөн сонголт бүхий техникийн шийдэлтэй үр ашигтай технологийг Heroal-аас л авах боломжтой. Эдгээр нь Heroal-ийн давуу талууд юм. Heroal нь хэдэн арван жил барилгын их биед зориулсан хөнгөнцагаан болон хөнгөнцагааны хольцтой материалаар хийгдсэн шинэлэг шийдлээрээ архитектурчид, барилга зохион бүтээгчид, барилгын салбарын мэргэжилтнүүдийн найдвартай түнш байсаар ирсэн .
Барилга төлөвлөгчид Heroal-ийн дизайны олон төрлийн сонголтыг сайшааж, барилга зохион бүтээгчид түүний найдвартай системийг үнэлж чадсан бол түншүүд маань эдийн засгийн үр ашигтай Heroal системийн шийдлийн ашиг тусыг хүртэж байна. .
Heroal хаалганы систем нь дизайн, бат бэх чанар, функцийн шинэ хэмжээстэйгээр өргөжин тэлж байна. Энэхүү системийн үүдний хаалга нь статистикийн үндэслэлээр их биед хамгийн удаан оршин тогтнох эд анги юм. Иймээс л үүдний хаалганы уян хатан чанар, хэрэглэхэд тохиромжтой байдал, гадаад үзэмж зэрэг нь түүний ач холбогдлыг тодруулж байна.
Ер нь heroal-ийн хаалганы систем нь бат бэх, үйлдлийн систем сайтайгаас гадна дизайны өргөн сонголттой. Түүний олон хошуутай түгжээ, угсрахад зориулсан патент бүхий төхөөрөмж, Heroal-ийн хэв маягийг шингээсэн стандарт зэрэг нь гайхамшигтай. Модулийн тусгаарлагч бүс болон гурван шатлалт битүүмжлэх технологиор дээд зэргийн дулаан тусгаарлагч онцлог шинжүүдийг агуулдаг. .
Хувьсаж өөрчлөгддөг, хүчин чадалтай олон иж бүрдэл бүхий хаалганы системийн давуу талыг мэдрээрэй.
Хувьсан өөрчлөгддөг, үр ашигтай хаалганы иж бүрдэл
Heroal D 72 үүдний хаалганы систем нь зохицсон дизайн, зохистой үйл ажиллагааны шинжийг агуулсан.
Энэхүү систем нь модулийн бүтцээрээ загварын өргөн сонголтыг бий болгодог. Гадна байдал болон хэрэглээний онцлог шинж нь шинэ хэрэглэгчийн шаардлага буюу өөр өөр боломжид хялбархан зохицдог. Иймээс гайхамшигтай үзүүлэлт буюу үйлдлийн ажиллагаагаараа ялгарч чаддаг.
Хавтасны төрлүүд
Дан шил
Давхар шил
Битүү дүүргэлт
Битүү дүүргэлт
Heroal D 72 дүүргэгч хавтангын нэмэлт
Heroal D 72 хаалганы системийн хувьд heroal нь хөнгөн цагаан материалаар хийгдсэн дүүргэгч хавтангийн нэмэлттэй. Энэхүү хэсэг нь урьдчилан төлөвлөсний үндсэн дээр хаалганы онгойлт хэсэгт нэмж сурилуулагддаг ба хавтастайгаа нэгэн цул болсоноор хаалганы холбоос хэсгүүдийг далдлах боломжийг бий болгодог. Үүний үр дүнд хаалганы хэлбэр дизайн нь сэтгэл хангалуун байдлыг үүсгэх ба аюулгүй байдал тав тухыг таньд мэдрүүлэх болно. Heroal дүүргэх хавтангийн нэмэлтээр бий болгож буй олон өөр боломжуудын ачаар хавтасыг боломжит хамгийн дээд хэмжээг үйлдвэрлэж болно. Heroal D 72 хаалганы систем нь дүүргэх хавтангийн нэмэлтээр төрөл нь сайжирч олон олон давуу талыг бий болгож байгаа бэлдэцийн загвар нь олны талархалыг хүлээж байгаа билээ. Барилгын талбарт хүртэл хурдан, хялбар суурилуулж болдог, загварын өөрчлөлтөд тохируулж угсарч болдог, энэхүү системийг бүхэлд нь боловсруулахад хугацаа хэмнэсэн зэрэг нь шинэ загварын маш онцлог давуу талуудтай.
Бүтээлч хандлага
Heroal D 72 гадна хаалганы системийн хажуу талын холболтуудын профилийг өргөтгөснөөр Heroal нь энэ салбарын мэргэжилтнүүдэд шинэ боломжуудыг бий болгосон. Таны хэрэгцээ шаардлагаас хамаарч хажуу талын хэсгүүдийг эргэн тойрны хүрээ эсвэл холбогч хажуу талын хэсгүүдтэй гүйцээн хийж болно. Энэ нь хажуу хэсгүүдийн загварт шинэ боломжуудыг олгож байна. Тухайлбал, дэлгэгддэг хавтас болон хажуу талд нь зохицох дүүргэлтийг хийнэ. Түүнчлэн мэргэжлийнхэн өөрсдөө хамгийн тохирох боловсруулалтын хувилбарыг ч бас сонгож болно. Heroal нь хажуу хэсгүүдийн шинэ загварын хувьд богино бөгөөд энгийн боловсруулах хугацааг санал болгож байна.
Heroal-ийн булангийн холболтын технологи
Heroal-ийн сайжруулсан булангийн битүүмжилж дүүргэх арга нь булангийн хавчих бэхэлгээнд дөрвөн талт давхаргаар бүрэн дүүргэж бага материалаар бат бөх боломжит дүүргэлтийг хийнэ.
Энэ нь хаалга үйлдвэрлэгчийн үр ашгийн баталгаатай болж Heroal булангийн холболтын технологи нь үйлдвэрлэл болон угсралтын цаг ашиглалтыг оновчтой болгох давуу талаараа олны талархал хүлээсэн юм. Булангийн холболтын сайжруулсан технологи бүхий илүү тохиромжтой дүүргэх хуваарилалт нь материалийг тодорхой хэмжээгээр хэмнэдэг. Үр ашигтай, зардал багатайгаар угсрах олон янзын хэмжээтэй үйлдвэрлэлийн үйл ажиллагаандаа ашигладаг heroal-ийн тусгай багаж хэрэгсэлийн шийдлүүд байдаг.
Heroal T – холбогч технологи
Оновчтой, цаг хэмнэсэн хаалганы иж бүрдэлийг Heroal T-холбогч технологиор хийх боломжтой. Heroal–ийн наалддаг сайжруулсан дүүргэлт /наалдамхай дүүргэлтийн технологи/ нь бага хэмжээтэй дүүргэгчээр T-холболтуудын хамгийн боломжит битүүмжлэлийг бий болгодог. Энэ технологийн ачаар та уулзвар хэсгүүдийн битүүмж салж унах аюуулаас бүрэн холдож чадах юм. Шинэчлэн сайжруулсан Т холбогчийн технологи нь хамгийн бага материалаар дээд зэргийн чанарыг авах боломжыг таньд бий болгоно.
Heroal HT босгоны холболт
Heroal D 72 UD хаалганы системийн чухал хэсэг болох босгоны холболт нь системтэйгээр шинэчлэн зохион бүтээсэн. Ингэхдээ бүрэлдэхүүнхэсгүүдийн тоо ширхэгийг багасгахад голчлон анхаарсан. Үүнд дүүргэх технологи бүхий heroal Т холболтын технологи багтана. Heroal HT холболтын шинэ технологийг ашигласнаар уламжлалт үүдний холболттой харьцуулахад мэргэжлийн салбарынхан үйлдвэрлэлтийн үйл ажиллагаанд дээд тал нь 20% хүртэл цагийг хэмнэсэн. Heroal-ийн зүгээс 100%-ийн давтамжийн нарийвчлал болон туршилтын хугацаанд хамгийн сайн гүйцэтгэлийн давуу талуудыг санал болгож байна. Энэхүү систем нь стандартын хувьд булангийн хэсэгт хүрээг нь дүүргэж үйлдвэрлэсэн. Босгоны суурилуулалтын гүн нь хүрээ бэлдэцийн суурилуулалтын гүнтэй яв цав зохицсон байна.
Үүний үр дүнл цонхны дулаан дамжуулалтын коуффиценттэй ижил болгож чадсан Heroal-ийн тусгаарлах технологи талархал хүлээгээд байна. Босгоны загвар нь эргэн тойрны бусад битүүмжлэлтэй уулзвартай бэлдэцтэй харьцуулахуйц хэмжээнд хийгдсэн. Босгоны хэсгийн хувьд дулааны нэмэлт үүсвэр шаардлагагүй юм. Энэхүү үйлдвэрлэлийн арга нь үйлдвэр дээрх үйлдлийг багасгаж газар дээрх угсралтын цаг хэмнэх олон олон давуу талыг мэдрүүлнэ.
Heroal тоноглолын онцлогууд
Аюулгүйн баталгаа, тав тухыг хангах бэлдэцийн дизайн
Heroal D 72 хаалганы системийн бэлдэцийн хэлбэр нь угсарч тохируулах олон янзын хэлбэрт тохирсон ховилтойгоор бүтээгдсэн байдаг. Түүнчлэн хэлбэр нь хаалганы эвхдэг хэсэг харагдахуйц байхаар хийсэн бөгөөд орчин үеийн онгойлгох технологиудын хэрэглэгчдийн хэрэгцээнд нийцүүлсэн хэрэглээнд зориулсан тохиргооны технологийг ашигласан. Үйл явцыг түргэтгэж өгсөн бөгөөд энэ нь түгжээ болон нугасыг бэхэлж суурилуулдаг. Бүхэлдээ далд нугас бүхий системийн цогц нь тусгаарлах түвшинг багасгахгүйгээр хийх боломжтой. Heroal-ийн нугасны бүх систем нь гурван хэмжээст тохиромжтой байдаг. Дээд зэргийн гангаар хийгдсэн гол төмрөн нугаснуудыг бүтээгдэхүүний төрөл зүйлээс харах боломжтой.
Heroal-ийн хаалганы далд нугас
Heroal-ийн тоноглолын технологи нь модулийн загварын гол хэсэг нь юм. Хаалганы далд нугас нь архитектурын хувьд нэн ухаалаг төрөл зүйл юм. Иймд системийн дулааны болон битүүмжлэлийн ирмэгт зай үүсгэхгүйн тулд зөвхөн дотоод хагас их биеийг машинаар хийдэг. Гурван хэмжээст нугасны систем нь өндөр, тавцан, даралт гэсэн гурван түвшинд зориулсан хувилбарт тохируулж хялбар, тохиромжтой байдлаар угсарч болно.
Heroal-ийн хаалганы ил нугас
Гурван хэмжээст тохируулдаг нугасны систем нь хаалганы профилыг нэвт нүхэлж суурилуулдаг ба хаалганд суулт өгөхгүй далавчны резин жийрэгийг таслах шаардлаггүй байдагаараа бусад нугаснаасаа илүү давуу талыг бий болгодог юм. Энэхүү нугасны системийн онцлог нь профилийн системийг машинчлахгүйгээр хурдан шуурхай суурилуулж болдог. Энэ нь дулаалгын болон битүүмжлэлийн ирмэгт зай үүсэхээс хамгаална. Энэхүү нугасны системийн хамт өндөр,хажуу болон даралтын гурван түвшинд тохируулж хялбар, тохиромжтой угсралтыг хийж болно. Heroal нь цагаан, мөнгөлөг, дээд зэргийн гангаар хийсэн ил болон далд нугаснуудыг санал болгож байна.