Odoo image and text block

Товч танилциулага

Heroal  компани нь хөнгөнцагаан систем үйлдвэрлэлтээрээ олон улсад тэргүүлэгч компаниудын нэг бөгөөд цонх, хаалга, фасад, хамгаалалтын жалюз зэрэг системийг хөгжүүлэн, үйлдвэрлэж байна.  

Heroal -ын үйл ажиллагааны үндсэн зарчим бол өндөр түвшинд бэлтгэгдсэн мэргэжилтнүүдээс бүрдсэн хамт олонд тулгуурлаж хэвтээ интеграцлал болон технологийн аюулгүй ажиллагааг бүрэн хангасан, эрчим хүчний хэмнэлттэй ашигладаг өөрийн үйлдвэрлэлийг Герман улсад явуулж зураг төсөлчид, архитекторууд, барилгачдыг чанарын стандартыг дээд зэргээр хангасан, эдийн засгийн хувьд үр өгөөжтэй бүтээгдэхүүнээр хангасанаар барилгын үнэ цэнийг нэмэгдүүлэхэд оршино.

Heroal  нь мөн 40,000м2 талбай дээр үйл ажиллагаагаа зохион байгуулж, өөрийн автопарк бүхий бараа бүтээгдэхүүн хуваарилах ложистик төвийг шинээр ашиглалтанд оруулан ажиллаж байна.

Heroal  нь хэрэглэгчдийн эрх ашгийг хамгаалах үүднээс өөрийн жалюзан хаалт, хаалга, цонх, фасад, тусгайлсан профиль хийцлэл зэрэг бараа бүтээгдэхүүнүүд болон агуулах сервис үйлчилгээндээ Герман улсын Rosenheim ift-ээс чанар стандартын баталгаажилтыг авдаг бөгөөд Heroal нь цэвэр өөрийн үйлдвэрлэлийн бүтээгдэхүүнээр хэрэглэгчийг хангаж ажилладаг.

heroal

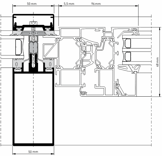
Шилэн фасадны Heroal C50 HI  систем

Дээд зэрэглэлийн түүхий эд материалаар орчин үеийн өндөр нарийвчлалтай техникийн дэвшилтэт технологид суурилан барилга архитектурын олон хувилбарт цогц шийдлийг өргөн сонголттойгоор санал болгож чадсанаар бидний давуу тал тодорхойлогддог. Барилгын гадар өнгөлгөө, үзэмжинд хөнгөн цагаан болон холбох материалуудыг өргөнөөр хэрэглэх болсноор зохион бүтээгч, гүйцэтгэгч, гэрээлэгчдэд олон талын боломж бололцоо, орон зай нээгдэж, жилээс жилд нэмэгдсээр ирлээ. Барилгын салбарынхан энэхүү жишгээр төлөвлөсөн зүйлс, бодол санаагаа амьдралд бодитоор хэрэгжүүлэхэд барилга архитектур, текник шийдэл төдийгүй эдийн засгийн хувьд ч үр өгөөжтэй байх нөхцөл бүрдсэн юм. Heroal C50 фасадны систем нь эрчим хүчний хэмнэлт, дулаан хадгалах чанараараа зүй ёсоор дэлхийд тэргүүлэх байр суурийг эзэлнэ. Энэхүү систем нь техник шийдлийн хувьд зохиомж загварчлалын ямар нэгэн хязгаарлалтгүйгээр чөлөөтэй бүтээх боломж олгохоос гадна шахалт сайтай тусгаарлагч болон жийргэвч чигжээс зэрэг нь системийг боловсруулах процесс, угсарч суурилуулах дахин тохиргоо хийх ажиллагаанд олон үйлдэлтэй.

Odoo image and text block 

Heroal C 50 фасадны системүүд

Хэрэгцээ шаардлагад нийцүүлсэн оновчтой шийдлүүд:

    Фасадны систем нь барилга архитектурын орчин үеийн үзэл баритлалыг амьдралд хэрэгжүүлэхэд өргөн боломж бололцоог нээж өгсөн билээ. 

     Heroal C 50 фасадны систем нь арчитектуруудад, барилгын зураг төсөл боловсруулагчид болон гүйцэтгэгчдэд төгс шийдэл гаргах боломж бүрдүүлж чадсан. Харилцан уялдаатай, олон хувилбарт эд ангиудын бүрдэл нь Heroal  системийн олон давуу талууд болон уян хатан байдлыг бий болгодог. Уг систем нь дизайн, харагдацын хувь өнгө үзэмжтэйгээс гадна хэрэглээ, ажиллагааны хувьд найдвартай, амьдралд туршигдсан систем юм. Heroal С 50 фасадны системийн уг үндэс нь конструкцийн нэгдмэл төвлөрөлд оршдог. 

     Бид энэ хүрээнд (Heroal C 50) Фасадны олон хувилбарт шийдэлтэй систем, (Heroal C 50 ID) Загварлаг ган хийцтэй фасадны систем, (Heroal C 50 HI) Өндөр дулаан тусгаарлалттай фасадны систем, (Heroal C 50 PH) Пассив хаус сертификатлалтай фасадны систем, (Heroal C 50 FP) Галын хамгаалалттай фасадны систем зэрэг цуврал бүтээгдэхүүнүүдээ таньд санал болгож байна.

Гүйцэтгэлийн хувилбарууд ба загвар дизайн

  • Фасадны хувилбарууд: Тулгуур-Хөндлөвч, Тулгуур-Тулгуур, Хөндлөвч-Хөндлөвч  

  • Хэлбэр дүрс: Шулуун болон олон өнцөгт

  • Нэмэлт хэрэлглээ: Дээвэр хийцлэл, шилэн хорго, өвлийн хүлэмж

  • Системийн уялдаа: Heraol системийн бүх хаалга, цонх, дээврийн гэгээвч

  • Системийн нэмэлтүүд: төрөл бүрийн далдлах болон даац нэмэгдүүлэх профилиуд

  • Өнгө дизайн: HWR хуурай будгийн чанартай гоёмсог хучилт


Өндөр дулаан тусгаарлалттай фасадны систем

Өндөр дулаан тусгаарлалттай Heroal C50 HI систем нь фасад хананд 3 давхар шилэн багц хийх нөхцлийг бүрдүүлснээр Пассив хаус хэрэглээг бий болгох нөхцөл бүрдүүлсэн юм. 

Энэ нь он удаан жилийн хэрэглээ даахаас гадна эрчим хүч хэмнэлтийн үзэл баримтлалд гайхалтай өөрчлөлт авчирсан. Дизайн хийцлэлийн тусгай бүрдэл хэсгүүд нь хурдан шуурхай угсралт суурилуулалт хийх, аюулгүй ажиллагааг хангасан эдийн засгийн хэмнэлттэй үйлдвэрлэл явуулах боломжийг нээж өгсөн. 

Мөн энэхүү фасадны системийн чанартай тусгай хөөсөн тусгаарлагч, үл тасалдах жийргэвч хийцлэл нь бусдаас ялгарах бас нэг онцлог нь болдог.

Системийн хэмжээс болон шинж чанар

  • Харагдах өргөн: 50mm

  • Тулгуурын зузаан: 28-260mm

  • Хөндлөвчний зузаан: 6-215mm

  • Шил болон дүүргэлтийн зузаан: 28-62mm

  • Дүүргэлтийн ачааллах жингийн дээд хязгаар: 450kg

  • Дулаан тусгаарлалт: Uf 0.78-1.4W/m2K

  • Хулгайн эсрэг хамгаалалт: RС2 хүртэл

  • Салхины ачаалал эсэргүүцэлт: 2kN/m2 /зөвш./,

  • 3kN/m2 /дээд/

  • Ус чийг нэвтрүүлэлт: RE1200

  • Агаар нэвтрүүлэлт: AE

  • Цохилт тэсвэрлэлт: I5/E5

  • Дуу чимээ тусгаарлалт: 49 DB хүртэл

Heroal өнгөлгөө, будган хучилтын талаар

Өнгөлгөө, будган хучилт нь heroal системийн салшгүй бүрдэл нэсгийн нэг юм.

Энэ хүрээнд Heroal нь системийн оновчтой зочицолдлогоог хангаж цонх хаалга, фасад, эвхэгддэг болон хуулидаг хаалт, жалюз г.м. бүхий л хүрээг хамруулж чадсан билээ. 

Heroal систем нь өнгөлгөө будган хучилтны өөрийн технологийг хөгжүүлсэн бөгөөд хуурай будгийн HWR үелэн будалтны өндөр үр дүнд хүрсэн юм. GSB Premium - Beschicher, Qualcoat Gutsiegel зэрэг албан ёсны шагналууд нь бидний тус салбарт эзлэх байр суурийг илтгэх биз ээ.

Хуурай будган хучилтаас гадна Heroal өөрийн хэрэглэгчиддээ Элоксал хучилт болон гоёлын Ламинатан хучилтыг санал болгодог.

Heroal системийн өнгөлгөө будган хучилтын зохицолдлогоог оновчтой хийснээр түншүүддээ бүтээгдэхүүн үйлдвэрлэл, нийлүүлэлтийг богино хугацаанд хийж өгөх боломж бүрдсэн юм.

 

 
 

Та манай онлайн дэлгүүрээс үнийн мэдээлэлээ авна уу...

Танилцуулга татах